Featured Model
The Pronghorn
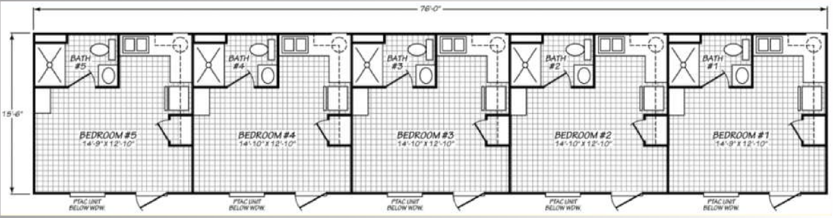
5Bedrooms
5Bathrooms
1,185Sq Ft
Our flagship workforce housing unit. Each of the 5 bedrooms has its own private bathroom. The exact build pictured below is what we have on-site right now, ready for move-in.

The Layout
Five Suites. One Footprint.
Five identical 14'10" × 12'10" bedroom suites flanking a shared kitchen and entry. Multiple entry points keep crew traffic flowing.
Best Fit For
Download Brochure (PDF)Maximum privacy - every worker gets their own bedroom AND bathroom.
Walk-Through
Inside The Pronghorn.
The exact build pictured. Real photos from on-site.
What's Included
Every Unit Includes.
Move-in ready with everything your crew needs.
- Climate ControlPTAC units in every room
- Private BathroomsOne per bedroom
- Full KitchenFridge, stove, microwave
- Wood-Look FlooringDurable and easy to clean
- Large WindowsNatural lighting
- Secure EntryLocking doors
- All UtilitiesWater, electric included
- On-Site SupportMaintenance available
5
Bedrooms
5
Bathrooms
1,185
Square Feet
76' × 15'6"
Dimensions

On Site Now
Walk Through The Pronghorn.
The exact build pictured throughout the page is on-site and ready for a tour. See the suites, the kitchen, the finish quality - then decide.