Compact & Durable
The Small Ranger Lodge
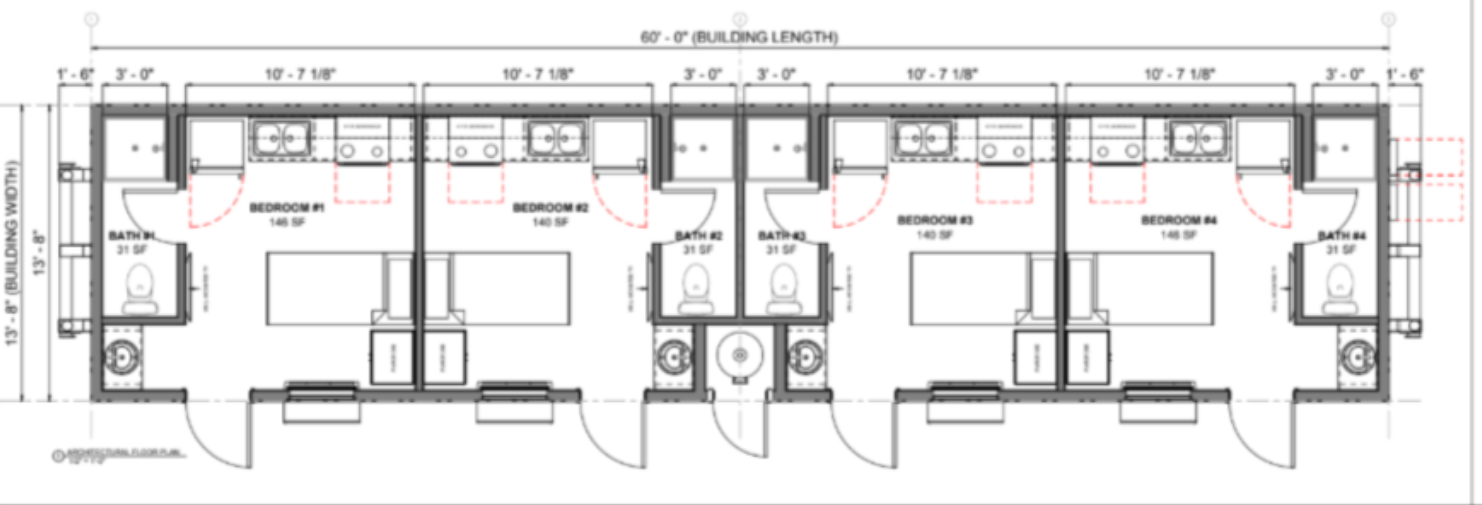
4Bedrooms
4Bathrooms
840Sq Ft
14'x60' 4-bedroom studio skid sleeper with premium finishes. Features 8ft sidewalls and wood frame construction for durability.

The Layout
Compact. Premium Built.
Wood frame with 8-foot sidewalls, metal roof, vinyl plank flooring, pine trim. Built to last on a tight footprint.
Best Fit For
Download Brochure (PDF)Tighter footprints with no compromise on construction quality.
Walk-Through
Inside The Small Ranger Lodge.
Compact, premium-built exterior. More photos coming soon.
What's Included
Every Unit Includes.
Premium construction with durable finishes.
- 4 Private BedroomsIndividual rooms
- 4 Full BathroomsPrivate for each room
- 8 ft SidewallsSpacious interior
- Wood FrameDurable construction
- Wall PTAC UnitsClimate control
- Vertical SidingExterior finish
- Low-E WindowsWhite vinyl frames
- Vinyl Plank FloorEasy to clean
- Pine TrimInterior finish
- Can Lights / FansRecessed lighting
- Metal RoofWeather resistant
- 200 AMP PanelExterior panel
4
Bedrooms
4
Bathrooms
840
Square Feet
14' × 60'
Dimensions

Compact Premium
Walk the Small Ranger Lodge.
Wood frame, metal roof, 8-foot sidewalls. See the build quality up close before deciding.